
Ανεξάρτητη Μεζονέτα Νο3 στο Σαρακινικο-ΓΑΥΡΙΟΥ (κτήμα Β). ΕΠΩΛΗΘΗ
Στην κορυφογραμμή του πρώτου λόφου προς Άνω Αγίου Πέτρου, δημιουργείται το συγκρότημα κατοικιών με πανοραμική θέα 270 μοιρών, που βλέπουν, προς τον κάμπο και το Λιμάνι του Γαυρίου, προς τά Γαυριονήσια, Τζιά, Γυάρο και απέραντο Γαλάζιο, και προς την παραλία και τον κάμπο του Κάτω Αγίου Πέτρου. Απέχουν οδικά από το λιμάνι του Γαυρίου, απόσταση 900 μέτρων, με άσφαλτο όλη την διαδρομή.
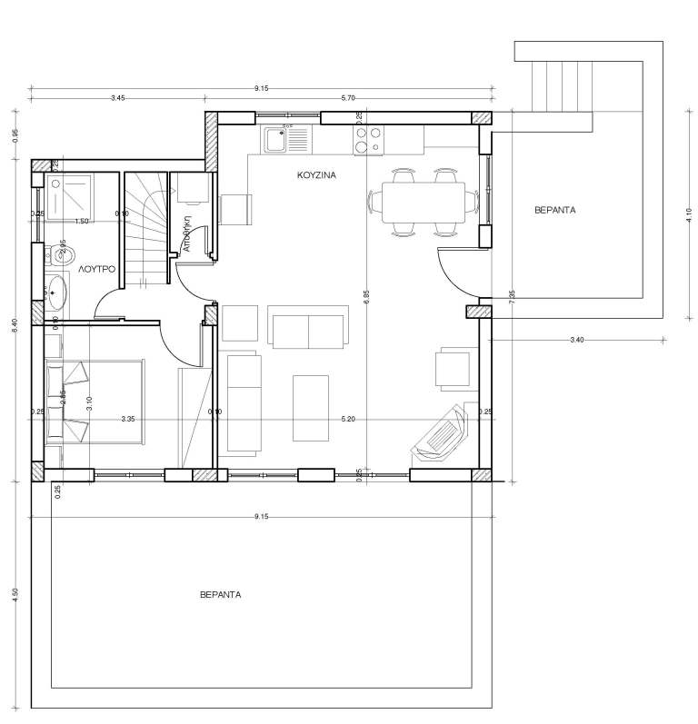
Η ανεξάρτητη κατοικία έχει τρείς στάθμες και βρίσκεται εντός κτήματος έκτασης 6.100μ2. Βρίσκεται στο ένα άκρο της έκτασης, μαζί με άλλες τρεις κατοικίες που έχει το οικόπεδο με δική της έκταση 1.890 μ2. Η μεζονέτα έχει συνολικό εμβαδόν 110,25μ2, εκ΄ των οποίων 64,00μ2 στο ισόγειο και 46,25μ2 στον όροφο. Βρίσκεται στο στάδιο με αποπερατωμένα τα μπετά. Οι δύο στάθμες επικοινωνούν με εσωτερική σκάλα. Ο ισόγειος χώρος περιλαμβάνει ευρύχωρη κουζίνα με λειτουργικό χώρο παρασκευαστηρίου και φύλαξης σκευών, σαλόνι με τζάκι, λουτρό με ντουσιέρα, αποθήκη για πλυντήριο ρούχων και ένα υπνοδωμάτιο. Ο όροφος περιλαμβάνει τρία υπνοδωμάτια τα δύο με ευρύχωρες ντουλάπες και ένα λουτρό με ντουζιέρα και έπιπλο με ντουλάπια για νιπτήρα. Υπάρχει και η Α΄ στάθμη (Υμιυπόγειο), με προτεινόμενη κάτοψη εμβαδού 47,00μ2 και θα παραδοθεί ημιτελής, και τελειωμένη κατόπιν πρόσθετης συμφωνίας.



















