
Ανεξάρτητη Μεζονέτα Νο1 στο Σαρακίνικο-ΓΑΥΡΙΟΥ (κτήμα Β)
Στο Γαύριο, στην κορυφογραμμή του λόφου προς το χωριό του Άνω Αγίου Πέτρου, δημιουργείται το συγκρότημα κατοικιών με πανοραμική θέα 270 μοιρών. Οι κατοικίες βλέπουν προς τον κάμπο και το Λιμάνι του Γαυρίου, προς τά Γαυριονήσια, και τις νήσους Τζιά, Γιάρο, Σύρο, και το Γαλάζιο της θάλασσας. Από την άλλη πλευρά βλέπουν, την παραλία και τον κάμπο του Κάτω Αγίου Πέτρου και προς το Μπατσί. Απέχουν οδικά από το λιμάνι του Γαυρίου, απόσταση 900 μέτρων, με άσφαλτο όλη την διαδρομή.
Η ανεξάρτητη κατοικία βρίσκεται σε κτήμα έκτασης συνολικής 6.100 μ2.
Βρίσκεται στο ένα άκρο της έκτασης, μαζί με άλλες τρεις κατοικίες που έχει το οικόπεδο με δική της έκταση 1.026 μ2.
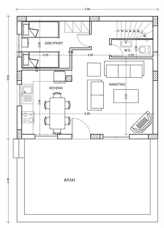
Έχει συνολικό εμβαδόν 85,00μ2, εκ΄ των οποίων 48,50μ2 στο ισόγειο και 36,50μ2 στον όροφο.
Βρίσκεται σε στάδιο κατασκευής με αποπερατωμένα τα τούβλα. Αποτελείται από δύο στάθμες που επικοινωνούν με εσωτερική σκάλα.
Ο ισόγειος χώρος περιλαμβάνει ευρύχωρη κουζίνα με λειτουργικό χώρο παρασκευαστηρίου και φύλαξης σκευών, σαλόνι με τζάκι, W.C. και ένα υπνοδωμάτιο.
Ο όροφος περιλαμβάνει δύο υπνοδωμάτια και ένα λουτρό με ντουζιέρα, με έπιπλο με ντουλάπια για τον νιπτήρα και πλυντήριο ρούχων.
Η κατοικία θα παραδοθεί πλήρως αποπερατωμένη με διαμορφωμένη την περίφραξη του περιβάλλοντα χώρου.
Ο τρόπος κατασκευής είναι συμβατικός με σκελετό από οπλισμένο σκυρόδεμα, τούβλα, μονώσεις με διογκωμένη πολυουραιθάνη 5 εκατ., σοβά 3 στρώσεων.
Το υπόλοιπο της κατασκευής θα γίνει με δάπεδα από κεραμικά πλακάκια, πέτρες Καρύστου στις βεράντες κτλ. Χρόνος αποπεράτωσης 5 μήνες.
Τιμή πώλησης ώς έχει (με αποπερατωμένα τα τούβλα), 95.000 ευρώ και 185.000 ευρώ πλήρως αποπερατωμένη.
















